{{curreentCase.CaseSelected.Header}}

Ein Lichtband aus VELUX Modular Skylights sorgt über dem Treppenauge in einer ovalen Lichtlaterne für besonderes Ambiente

Büroobjekte sind oft schlicht, funktional, durch klare Grundrisse gegliedert und gut belichtet, um optimale Arbeitsbedingungen zu schaffen. Überträgt man diese Charakteristika auf ein Wohnobjekt entsteht eine Hybridtypologie, die für das Wohnen neue Qualitäten bereithält. So geschehen bei dem Neubau des WALO Hauses in Zürich von Duplex Architekten.

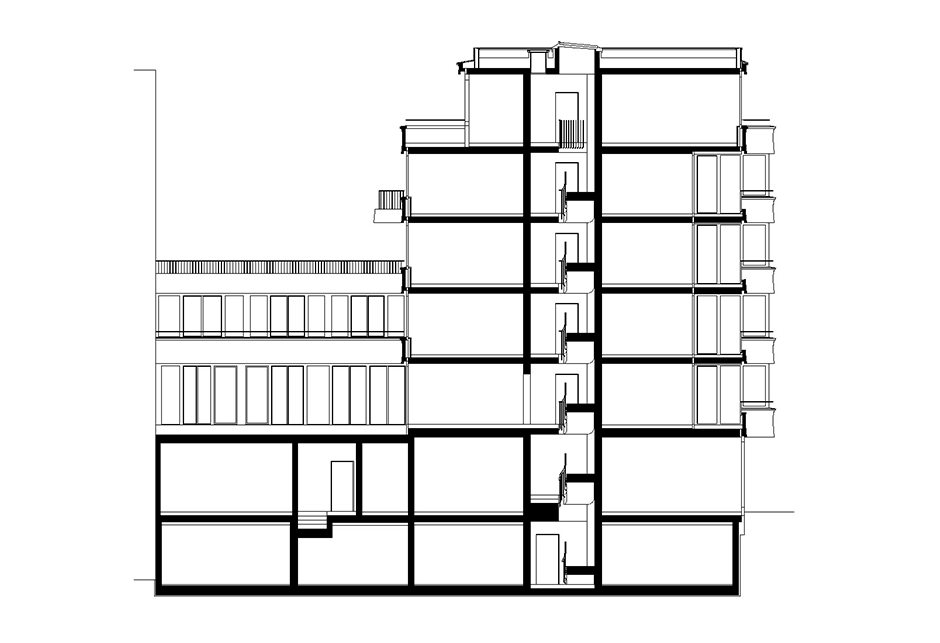
Das Gebäude ersetzt in innerstädtischer Lage nun als Wohnhaus den ehemaligen Hauptsitz der WALO Bertschinger  AG. Von Aussen ist das Gebäude durch horizontal durchlaufende Fensterbänder, prägnante Brüstungselemente und eine offene Erdgeschosszone mit gewerblichen Nutzungen nicht eindeutig einer bestimmten Typologie zuzuordnen. Das Objekt wirkt skulptural.

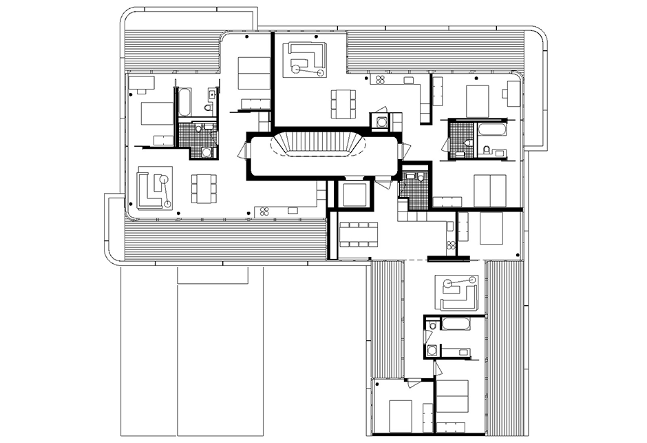
Im Inneren trifft man auf Reduktion und Minimalismus. Das vollständig umschlossene sechsgeschossige Treppenhaus wird ausschliesslich von oben über ein VELUX Modular Skylights-Lichtband belichtet. Dieses wurde sehr flach im 5° Winkel eingebaut und ermöglich somit ein Maximum an Lichtausbeute. Das Lichtband besteht aus sieben Modulen, die exakt über dem Treppenauge platziert wurden. In Kombination mit der schlichten aber hochwertigen Materialwahl entsteht eine sehr sanfte und homogene Lichtstimmung, die je nach Wetter und Sonnenstand variiert. 

Bautafel


{{property.PropertyName}}

{{pValue.PropertyValue}}

Architekturzeichnungen

Im Projekt verwendete Produkte

1 x Lichtband

Lichtband 5°–30°

Eine einfach geneigte Lösung, ideal für Flach- und Pultdächer

Darstellung der Lichtband-Lösung Mehr erfahren

Anzahl der Module: 7

Special Glazing: 3-fach-Wärmeschutzverglasung

Lichtband 5°–30°

Eine einfach geneigte Lösung, ideal für Flach- und Pultdächer

Darstellung der Lichtband-Lösung Mehr erfahren

Thomas Hauser

Duplex Architekten AG

Die Entscheidung fiel auf VELUX Modular Skylights aufgrund schlichter, filigraner Profile und im System integrierter RWA-Flügel, die nicht als zusätzlicher Rahmen sichtbar sind.

Thomas Hauser

Duplex Architekten AG

Das Lichtband dient nicht nur der Belichtung, sondern schließt den Raum als architektonisches Element nach oben ab.

Lichtschacht inszeniert Treppenhaus

Im monolithischen Beton-Treppenhaus wird ebenso wie bei der ovalen Oberlichtlaterne, in die das modulare Lichtband eingebettet wurde, das abgerundete Detail der Fassade aufgegriffen. Neben den gestalterischen Aspekten vereint das Lichtband, das direkt auf die Betonunterkonstruktion aufgesetzt wurde, auch die technische Funktion als Rauch- und Wärmeabzug.

Das modulare System-Icon

Das modulare System

Erfahren Sie mehr über Modularität, die wichtigsten Vorteile und unsere Zusammenarbeit mit Foster + Partners.

Entdecken Sie das modulare System
Projektunterstützung für VELUX Modular Skylights-Icon

Wir helfen Ihnen gerne.

Unsere Experten für Tageslicht-Systeme begleiten Sie durch den gesamten Prozess vom Entwurf bis zum Einbau.

Projektunterstützung

Lassen Sie sich inspirieren